Детайли
Тип имот: Мезонет Сделка: Продава Населено място: град Варна Район: м-т Долна Трака Квадратура: 196 кв.м Строителство: Тухла Етаж: 3-ти Цена: 323 550 € - 632 808,80 лв. (1 650,76 € / m2 - 3 228,61 лв. / m2 )
Информация Покажи всичко ↓
Предлагаме за продажба МЕЗОНЕТ в кв. Трака, разположен в нова бутикова сграда с модерен облик и отлично местоположение. Районът е изключително предпочитан заради тишината, чистия въздух и бързия достъп до центъра на града.
Сградата е с асфалтов път и лесен целогодишен достъп, в близост до главни пътни артерии, спирки на градски транспорт и всички необходими удобства за комфортен начин на живот.
Имотът е пред разрешително за строеж, което дава възможност за гъвкава схема на плащане до Акт 16.
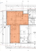
📐 Разпределение:
Обща площ: 196 кв. м
Чиста жилищна площ: 120 кв.м
Дневен тракт с кухненски бокс - просторен и светъл, с възможност за обособяване на кът за
Особености
- С паркинг
- Контрол на достъпа
Сподели обявата
Други обяви от РЕМАКС АКТИВ
Подобни обяви



Продава Мезонет
323 550 €
632 808,80 лв. Цената е с включено ДДС
632 808,80 лв.
196 кв.м
град Варна, м-т Долна Трака

Продава Мезонет
323 550 €
632 808,80 лв. Цената е с включено ДДС
632 808,80 лв.
196 кв.м
град Варна, м-т Долна Трака

Продава Мезонет
301 050 €
588 802,62 лв. Цената е с включено ДДС
588 802,62 лв.
177 кв.м
град Варна, м-т Долна Трака


![Продава Мезонет град Варна , м-т Долна Трака , 196 кв.м | 16773822 - изображение [2] — Imoti.com Продава Мезонет град Варна , м-т Долна Трака , 196 кв.м | 16773822 - изображение [2]](http://imotstatic3.focus.bg/imot/photosimotbg/1/280/med/1f177091427471280_xQ.jpg)
![Продава Мезонет град Варна , м-т Долна Трака , 196 кв.м | 16773822 - изображение [3] — Imoti.com Продава Мезонет град Варна , м-т Долна Трака , 196 кв.м | 16773822 - изображение [3]](http://imotstatic3.focus.bg/imot/photosimotbg/1/280/med/1f177091427471280_l5.jpg)
![Продава Мезонет град Варна , м-т Долна Трака , 196 кв.м | 16773822 - изображение [4] — Imoti.com Продава Мезонет град Варна , м-т Долна Трака , 196 кв.м | 16773822 - изображение [4]](http://imotstatic3.focus.bg/imot/photosimotbg/1/280/med/1f177091427471280_Ex.jpg)
![Продава Мезонет град Варна , м-т Долна Трака , 196 кв.м | 16773822 - изображение [5] — Imoti.com Продава Мезонет град Варна , м-т Долна Трака , 196 кв.м | 16773822 - изображение [5]](http://imotstatic3.focus.bg/imot/photosimotbg/1/280/med/1f177091427471280_l8.jpg)
![Продава Мезонет град Варна , м-т Долна Трака , 196 кв.м | 16773822 - изображение [6] — Imoti.com Продава Мезонет град Варна , м-т Долна Трака , 196 кв.м | 16773822 - изображение [6]](http://imotstatic3.focus.bg/imot/photosimotbg/1/280/med/1f177091427471280_vz.jpg)
![Продава Мезонет град Варна , м-т Долна Трака , 196 кв.м | 16773822 - изображение [7] — Imoti.com Продава Мезонет град Варна , м-т Долна Трака , 196 кв.м | 16773822 - изображение [7]](http://imotstatic3.focus.bg/imot/photosimotbg/1/280/med/1f177091427471280_Ao.jpg)
![Продава Мезонет град Варна , м-т Долна Трака , 196 кв.м | 16773822 - изображение [8] — Imoti.com Продава Мезонет град Варна , м-т Долна Трака , 196 кв.м | 16773822 - изображение [8]](http://imotstatic3.focus.bg/imot/photosimotbg/1/280/med/1f177091427471280_4X.jpg)
![Продава Мезонет град Варна , м-т Долна Трака , 196 кв.м | 16773822 - изображение [9] — Imoti.com Продава Мезонет град Варна , м-т Долна Трака , 196 кв.м | 16773822 - изображение [9]](http://imotstatic3.focus.bg/imot/photosimotbg/1/280/med/1f177091427471280_74.jpg)
![Продава Мезонет град Варна , м-т Долна Трака , 196 кв.м | 16773822 - изображение [10] — Imoti.com Продава Мезонет град Варна , м-т Долна Трака , 196 кв.м | 16773822 - изображение [10]](http://imotstatic3.focus.bg/imot/photosimotbg/1/280/med/1f177091427471280_s5.jpg)
![Продава Мезонет град Варна , м-т Долна Трака , 196 кв.м | 16773822 - изображение [11] — Imoti.com Продава Мезонет град Варна , м-т Долна Трака , 196 кв.м | 16773822 - изображение [11]](http://imotstatic3.focus.bg/imot/photosimotbg/1/280/med/1f177091427471280_dH.jpg)


