DOMERA представя двустаен апартамент с отлична площ и просторна дневна зона, разположен в нова бутикова сграда с ограничен брой жилища.
Обща площ: 84,34 кв.м.
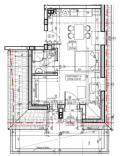
Разпределение:
Дневна с кухненски бокс
Спалня
Баня с WC
Коридор
Тераса
Апартаментът се отличава с изключително просторна дневна зона от над 29 кв.м., която позволява ясно обособяване на кухня, трапезария и холна част без компромис в комфорта. Големите прозорци осигуряват естествена светлина и усещане за отворено пространство.
Спалнята е с удобни размери и правилна форма, подходяща за стандартно двойно легло и гардероб. Банята е функционално организирана, а коридорът позволява позициониране на вградено съхранение.
Терасата допълва усещането за комфорт и създава възможност за външна зона за отдих.
Имотът
- Асансьор
- С гараж
- С паркинг
- Видео наблюдение
- Контрол на достъпа
- Възможност за дан. кредит


![Продава 2-стаен град София , Левски , 84 кв.м | 16241522 - изображение [2] — Imoti.com Продава 2-стаен град София , Левски , 84 кв.м | 16241522 - изображение [2]](http://imotstatic4.focus.bg/imot/photosimotbg/1/099/med/1b177097686200099_E5.jpg)





