Детайли
Тип имот: 3-стаен Сделка: Продава Населено място: град София Район: Сухата река Квадратура: 125 кв.м Строителство: Тухла Етаж: 2-ри Цена: 311 050 € - 608 360,92 лв. (2 488,40 € / m2 - 4 866,88 лв. / m2 )
Информация Покажи всичко ↓
DOMERA представя тристаен апартамент в новострояща се жилищна сграда в гр. София, в непосредствена близост до метростанция Хаджи Димитър .
Тип имот: тристаен апартамент
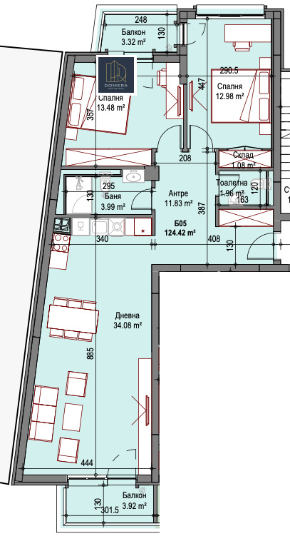
Площ: 124.42 кв.м
Отопление: ТЕЦ + изводи за климатици
Степен на завършеност: шпакловка и замазка
Разпределение:
просторна дневна с кухненски бокс 34.08 кв.м,
две спални 13.48 кв.м и 12.98 кв.м,
баня с WC,
отделна тоалетна,
склад,
антре
два балкона
Функционално разпределение с ясно отделена дневна и нощна зона, отлична осветеност и комфортен жилищен обем.
Локация: централна и комуникативна част на София. На 3 минути от метростанция Хаджи Димитър , в близост до метростанция Театрална , 143 ОУ, детски градини, парк Заимов ,
Особености
- Асансьор
- С гараж
- С паркинг
- Видео наблюдение
- Контрол на достъпа
- Възможност за дан. кредит
Сподели обявата
Други обяви от ДОМЕРА
Подобни обяви


![Продава 3-стаен град София , Сухата река , 125 кв.м | 78424654 - изображение [2] — Imoti.com Продава 3-стаен град София , Сухата река , 125 кв.м | 78424654 - изображение [2]](http://cdn3.focus.bg/imot/photosimotbg/1/426/med/1c177124691092426_MQ.jpg)





