Детайли
Тип имот: 2-стаен Сделка: Продава Населено място: град София Район: Лозенец Квадратура: 98 кв.м Строителство: Тухла Етаж: 9-ти Цена: 423 500 € - 828 294,01 лв. (4 321,42 € / m2 - 8 451,97 лв. / m2 )
Информация Покажи всичко ↓
Stonehard PREMIER: www.stonehardpremier.bg
Моля, кажете, че сте видeли обявата в този сайт.
Референтен номер: Kbs 110389
Сградата е с взет Акт 16!
Имаме удоволствието да ви предложим луксозна, жилищна сграда на 11 етажа и внушителните 44 метра дължина, на пешеходно разстояние от метростанция Витоша и Мол Парадайс, предлагаща двустайни, тристайни, четиристайни апартаменти и пентхаус.
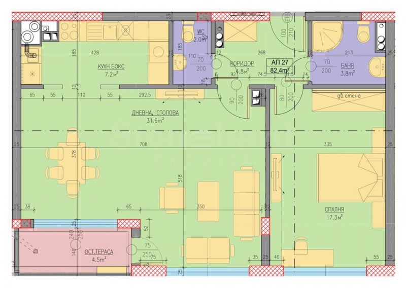
Конкретната оферта е за просторен двустаен апартамент на девети етаж с обща площ от 98.04 м2 и следното разпределение: антре, спалня, хол с трапезария и кухненски бокс (31.6м2), баня с тоалетна и душ-кабина, тоалетна, остъклена тераса, мазе.
Визуализациите са примерни. Инвеститорът предлага примерни интериорни решения, като е обърнато особено внимание на детайлите,
Особености
- Асансьор
Сподели обявата
Други обяви от СТОУНХАРД ПРЕМИЪР СОФИЯ
Подобни обяви


![Продава 2-стаен град София , Лозенец , 98 кв.м | 96665427 - изображение [2] — Imoti.com Продава 2-стаен град София , Лозенец , 98 кв.м | 96665427 - изображение [2]](http://imotstatic4.focus.bg/imot/photosimotbg/1/638/med/1b176181860382638_aU.jpg)
![Продава 2-стаен град София , Лозенец , 98 кв.м | 96665427 - изображение [3] — Imoti.com Продава 2-стаен град София , Лозенец , 98 кв.м | 96665427 - изображение [3]](http://imotstatic4.focus.bg/imot/photosimotbg/1/638/med/1b176181860382638_as.jpg)
![Продава 2-стаен град София , Лозенец , 98 кв.м | 96665427 - изображение [4] — Imoti.com Продава 2-стаен град София , Лозенец , 98 кв.м | 96665427 - изображение [4]](http://imotstatic4.focus.bg/imot/photosimotbg/1/638/med/1b176181860382638_CY.jpg)
![Продава 2-стаен град София , Лозенец , 98 кв.м | 96665427 - изображение [5] — Imoti.com Продава 2-стаен град София , Лозенец , 98 кв.м | 96665427 - изображение [5]](http://imotstatic4.focus.bg/imot/photosimotbg/1/638/med/1b176181860382638_QO.jpg)
![Продава 2-стаен град София , Лозенец , 98 кв.м | 96665427 - изображение [6] — Imoti.com Продава 2-стаен град София , Лозенец , 98 кв.м | 96665427 - изображение [6]](http://imotstatic4.focus.bg/imot/photosimotbg/1/638/med/1b176181860382638_Fg.jpg)
![Продава 2-стаен град София , Лозенец , 98 кв.м | 96665427 - изображение [7] — Imoti.com Продава 2-стаен град София , Лозенец , 98 кв.м | 96665427 - изображение [7]](http://imotstatic4.focus.bg/imot/photosimotbg/1/638/med/1b176181860382638_R8.jpg)
![Продава 2-стаен град София , Лозенец , 98 кв.м | 96665427 - изображение [8] — Imoti.com Продава 2-стаен град София , Лозенец , 98 кв.м | 96665427 - изображение [8]](http://imotstatic4.focus.bg/imot/photosimotbg/1/638/med/1b176181860382638_1D.jpg)
![Продава 2-стаен град София , Лозенец , 98 кв.м | 96665427 - изображение [9] — Imoti.com Продава 2-стаен град София , Лозенец , 98 кв.м | 96665427 - изображение [9]](http://imotstatic4.focus.bg/imot/photosimotbg/1/638/med/1b176181860382638_Fd.jpg)
![Продава 2-стаен град София , Лозенец , 98 кв.м | 96665427 - изображение [10] — Imoti.com Продава 2-стаен град София , Лозенец , 98 кв.м | 96665427 - изображение [10]](http://imotstatic4.focus.bg/imot/photosimotbg/1/638/med/1b176181860382638_ON.jpg)
![Продава 2-стаен град София , Лозенец , 98 кв.м | 96665427 - изображение [11] — Imoti.com Продава 2-стаен град София , Лозенец , 98 кв.м | 96665427 - изображение [11]](http://imotstatic4.focus.bg/imot/photosimotbg/1/638/med/1b176181860382638_q2.jpg)





