Детайли
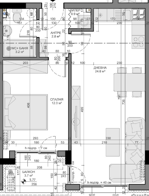
Тип имот: 2-стаен Сделка: Продава Населено място: град Варна Район: Владислав Варненчик 1 Квадратура: 65 кв.м Строителство: Тухла Етаж: 3-ти Цена: 88 000 € - 172 113,04 лв. (1 353,84 € / m2 - 2 647,89 лв. / m2 )
Информация Покажи всичко ↓
🏗 НОВО СТРОИТЕЛСТВО! ДОКАЗАН СТРОИТЕЛ! ВЪЗМОЖНОСТ ЗА ПАРКОМЯСТО И ГАРАЖ!
Имоти Премиер предлага за продажба двустаен апартамент в новострояща се сграда в кв. Владиславово, гр. Варна. Сградата е с издадено разрешение за строеж и ще бъде изпълнена от доказан и коректен строител с безупречна репутация.
📐 Площ: 65 кв.м.
🏢 Етаж: 3 от 5
Жилището се състои от:
Входно антре
Просторна дневна с кухненски кът
Спалня
Баня с тоалетна
Тераса
🚗 Към сградата са предвидени външни и вътрешни паркоместа, както и гаражи удобство и сигурност за всеки собственик.
✨ Изпълнението ще бъде с висококачествени материали, модерен дизайн и внимание към всеки детайл.
🏘 Предлагат се различни типове апартаменти
Особености
- Асансьор
- С гараж
- С паркинг
- Контрол на достъпа
Сподели обявата
Други обяви от ИМОТИ ПРЕМИЕР
Подобни обяви



Продава 2-стаен
123 000 €
240 567,09 лв. Цената е с включено ДДС
240 567,09 лв.
65 кв.м
град Варна, Владислав Варненчик 1

Продава 2-стаен
88 990 €
174 049,31 лв. Не се начислява ДДС
174 049,31 лв.
63 кв.м
град Варна, Владислав Варненчик 1

Продава 2-стаен
89 500 €
175 046,79 лв. Не се начислява ДДС
175 046,79 лв.
43 кв.м
град Варна, Владислав Варненчик 1


![Продава 2-стаен град Варна , Владислав Варненчик 1 , 65 кв.м | 95009740 - изображение [2] — Imoti.com Продава 2-стаен град Варна , Владислав Варненчик 1 , 65 кв.м | 95009740 - изображение [2]](http://cdn3.focus.bg/imot/photosimotbg/1/447/med/1b176103177194447_Jk.jpg)
![Продава 2-стаен град Варна , Владислав Варненчик 1 , 65 кв.м | 95009740 - изображение [3] — Imoti.com Продава 2-стаен град Варна , Владислав Варненчик 1 , 65 кв.м | 95009740 - изображение [3]](http://cdn3.focus.bg/imot/photosimotbg/1/447/med/1b176103177194447_hl.jpg)


