Детайли
Тип имот: Парцел Сделка: Продава Населено място: град София Район: с. Панчарево Квадратура: 3014 кв.м Цена: 391 820 € - 766 333,31 лв. (130 € / m2 - 254,25 лв. / m2 )
Информация
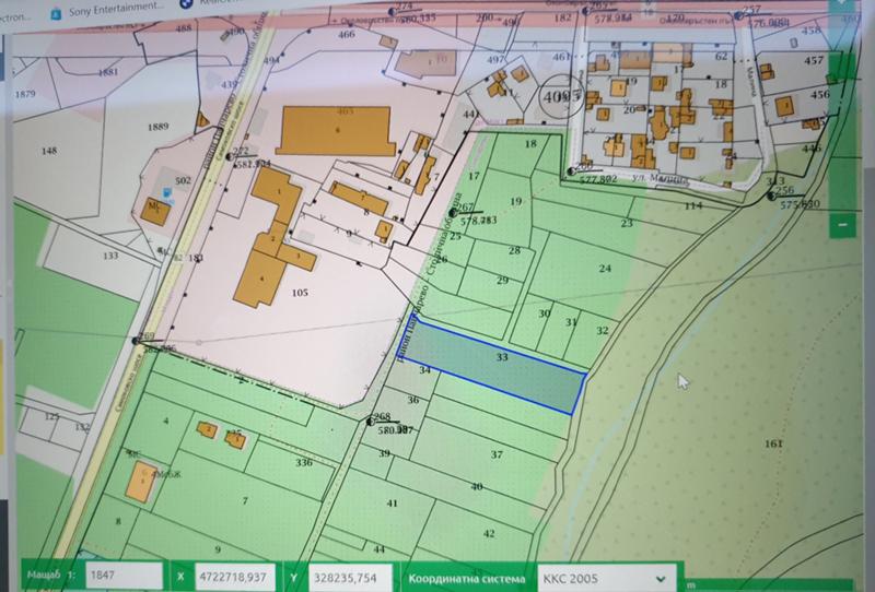
Продавам поземлен имот 68134.6722.33 област София (столица), община Столична, гр. София, район Панчарево, м. ГРАДИНА /ИЗТОК/площ 3041 кв. м. на Самоковско Шосе. От собственик! Предлагаме и други имоти в района които може да разгледате тук https://bit.ly/30u3l3l
Особености
- За пром.строителство
- Обезщетение
- За жил.строителство
Сподели обявата
Подобни обяви


![Продава Парцел град София , с. Панчарево , 3014 кв.м | 90552801 - изображение [2] — Imoti.com Продава Парцел град София , с. Панчарево , 3014 кв.м | 90552801 - изображение [2]](http://photos.imoti.com/images/1/973/med/1r161454619989973_32.jpg)


