Детайли
Тип имот: 3-стаен Сделка: Продава Населено място: град София Район: Младост 4 Квадратура: 122 кв.м Строителство: Тухла Цена: 287 734 € - 562 758,79 лв. (2 358,47 € / m2 - 4 612,77 лв. / m2 )
Информация Покажи всичко ↓
Представяме на Вашето внимание висок клас имот в една от най-перспективните зони на столицата - Младост 4. Апартаментът е част от модерна новострояща се сграда на доказан инвеститор, ситуирана в непосредствена близост до Бизнес Парк София, метростанция Бизнес парк и Академията на МВР.
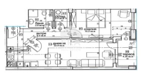
Жилището е разположено на партерен етаж и се отличава с функционално разпределение и правилни форми. Със застроена площ от 105.2 кв.м., имотът предлага просторна дневна зона с кухненски бокс, две комфортни спални, два санитарни възела и две тераси. Интериорът е на етап БДС (шпакловка и замазка), което предоставя отлична възможност за завършване според индивидуалните предпочитания на новите собственици.
Комплексът
Особености
- Асансьор
Сподели обявата
Други обяви от ЕРА ЛИВИНГ
Подобни обяви


![Продава 3-стаен град София , Младост 4 , 122 кв.м | 79007739 - изображение [2] — Imoti.com Продава 3-стаен град София , Младост 4 , 122 кв.м | 79007739 - изображение [2]](http://imotstatic3.focus.bg/imot/photosimotbg/1/059/med/1c177071641203059_e7.jpg)





