Детайли
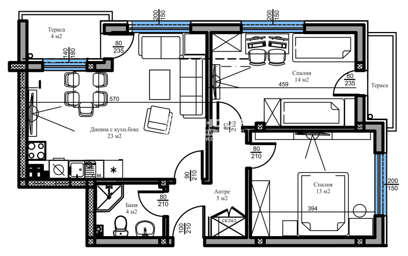
Тип имот: 3-стаен Сделка: Продава Населено място: град Пловдив Район: Беломорски Квадратура: 89 кв.м Строителство: Тухла Етаж: 2-ри Цена: 97 000 € - 189 715,51 лв. (1 089,88 € / m2 - 2 131,63 лв. / m2 )
Информация Покажи всичко ↓
Оферта 66208:Представяме Ви новоизградена малка и луксозна сграда, проектирана така, че да създаде максимален комфорт и уют в един от най- бързо развиващите се райони с лесен и удобен достъп и транспорт към центъра на Града. Сградата се намира на тихо и спокойно място в близост до всички необходими комуникации. Жилището се състои от светла дневна с трапезария и кухненски бокс с излаз на тераса, две самостоятелни спални: детска 14кв.м. и родителска 13.30кв.м., баня с тоалетна, килер, входно антре и още една тераса. Обектът е построен от фирма с доказан опит, като разполагаме с готови сгради и можем да Ви
Сподели обявата
Други обяви от КОНДОР - НЕДВИЖИМИ ИМОТИ
Подобни обяви


![Продава 3-стаен град Пловдив , Беломорски , 89 кв.м | 41844142 - изображение [2] — Imoti.com Продава 3-стаен град Пловдив , Беломорски , 89 кв.м | 41844142 - изображение [2]](http://imotstatic3.focus.bg/imot/photosimotbg/1/135/med/1c173798133644135_zo.jpg)
![Продава 3-стаен град Пловдив , Беломорски , 89 кв.м | 41844142 - изображение [3] — Imoti.com Продава 3-стаен град Пловдив , Беломорски , 89 кв.м | 41844142 - изображение [3]](http://imotstatic3.focus.bg/imot/photosimotbg/1/135/med/1c173798133644135_Px.jpg)
![Продава 3-стаен град Пловдив , Беломорски , 89 кв.м | 41844142 - изображение [4] — Imoti.com Продава 3-стаен град Пловдив , Беломорски , 89 кв.м | 41844142 - изображение [4]](http://imotstatic3.focus.bg/imot/photosimotbg/1/135/med/1c173798133644135_HU.jpg)
![Продава 3-стаен град Пловдив , Беломорски , 89 кв.м | 41844142 - изображение [5] — Imoti.com Продава 3-стаен град Пловдив , Беломорски , 89 кв.м | 41844142 - изображение [5]](http://imotstatic3.focus.bg/imot/photosimotbg/1/135/med/1c173798133644135_gU.jpg)





