Детайли
Тип имот: 3-стаен Сделка: Продава Населено място: град Перник Район: Център Квадратура: 115 кв.м Строителство: Тухла Етаж: 4-ти Цена: 188 000 € - 367 696,04 лв. (1 634,78 € / m2 - 3 197,35 лв. / m2 )
Информация Покажи всичко ↓
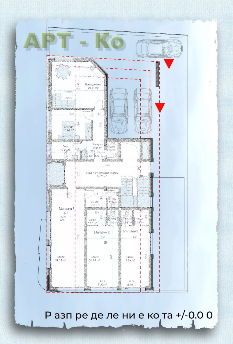
КОД 4073; Тристаен апартамент за продажба в новострояща се сграда в гр. Перник- Център. Цена с включен ДДС. Предлагаме за продажба жилище в новоизграждаща се сграда, разположена в централната част на гр. Перник. Сградата е проектирана съобразно най-съвременните изисквания за комфорт, функционалност и качество на материалите, като гарантира висок стандарт на обитаване и естетика. Апартаментът е на четвърти етаж със РЗП 114,16 м2. Чиста площ от 93,81 м2, разпределени както следва: кухня-трапезария- дневна и килер в отворен план, спалня, кабинет и две бани със санитарни възли. Локацията е отлична -в близост до СОУ и ОДЗ, както и до вече обитаеми
Особености
- Контрол на достъпа
- Саниран
Сподели обявата
Други обяви от АРТ-КО
Подобни обяви


![Продава 3-стаен град Перник , Център , 115 кв.м | 21125983 - изображение [2] — Imoti.com Продава 3-стаен град Перник , Център , 115 кв.м | 21125983 - изображение [2]](http://imotstatic3.focus.bg/imot/photosimotbg/1/818/med/1c176149359755818_V1.jpg)
![Продава 3-стаен град Перник , Център , 115 кв.м | 21125983 - изображение [3] — Imoti.com Продава 3-стаен град Перник , Център , 115 кв.м | 21125983 - изображение [3]](http://imotstatic3.focus.bg/imot/photosimotbg/1/818/med/1c176149359755818_DC.jpg)
![Продава 3-стаен град Перник , Център , 115 кв.м | 21125983 - изображение [4] — Imoti.com Продава 3-стаен град Перник , Център , 115 кв.м | 21125983 - изображение [4]](http://imotstatic3.focus.bg/imot/photosimotbg/1/818/med/1c176149359755818_a8.jpg)
![Продава 3-стаен град Перник , Център , 115 кв.м | 21125983 - изображение [5] — Imoti.com Продава 3-стаен град Перник , Център , 115 кв.м | 21125983 - изображение [5]](http://imotstatic3.focus.bg/imot/photosimotbg/1/818/med/1c176149359755818_aG.jpg)
![Продава 3-стаен град Перник , Център , 115 кв.м | 21125983 - изображение [6] — Imoti.com Продава 3-стаен град Перник , Център , 115 кв.м | 21125983 - изображение [6]](http://imotstatic3.focus.bg/imot/photosimotbg/1/818/med/1c176149359755818_sQ.jpg)
![Продава 3-стаен град Перник , Център , 115 кв.м | 21125983 - изображение [7] — Imoti.com Продава 3-стаен град Перник , Център , 115 кв.м | 21125983 - изображение [7]](http://imotstatic3.focus.bg/imot/photosimotbg/1/818/med/1c176149359755818_3T.jpg)




