Детайли
Тип имот: 3-стаен Сделка: Продава Населено място: град Варна Район: Виница Квадратура: 95 кв.м Строителство: Тухла Етаж: 3-ти Цена: 149 000 € - 291 418,67 лв. (1 568,42 € / m2 - 3 067,56 лв. / m2 )
Информация Покажи всичко ↓
ПРЕД АКТ 16.
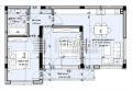
Явлена предлага за продажба просторен апартамент с югозападно изложение, разположен на предпоследен (трети) етаж в четириетажна сграда. Жилището се състои от слънчева дневна с площ 25 кв.м, две спални с площ съответно 12 кв.м и 13 кв.м, баня и избено помещение с площ 3,6 кв.м.
Сградата е с модерна визия и разполага с общо 23 апартамента, разпределени на 4 етажа. За удобство на живущите е предвиден асансьор. В полусутерена са разположени закрити паркоместа и гаражи, а в двора открити паркоместа.
Акт 15 е получен, като разрешението за ползване (Акт 16) се очаква всеки момент.
Има възможност за
Особености
- Асансьор
- Саниран
Сподели обявата
Други обяви от ЯВЛЕНА - ОФИС ВАРНА 



Продава 3-стаен
199 000 €
389 210,17 лв. Цената е с включено ДДС
389 210,17 лв.
58 кв.м
град Варна, Лятно кино Тракия

Продава Парцел
10 000 €
19 558,30 лв. Цената е с включено ДДС
19 558,30 лв.
1000 кв.м
с. Генерал Кантарджиево, област Варна

Продава Офис
109 000 €
213 185,47 лв. Цената е с включено ДДС
213 185,47 лв.
26 кв.м
град Варна, Гръцка махала
Подобни обяви


![Продава 3-стаен град Варна , Виница , 95 кв.м | 17153706 - изображение [2] — Imoti.com Продава 3-стаен град Варна , Виница , 95 кв.м | 17153706 - изображение [2]](http://imotstatic4.focus.bg/imot/photosimotbg/1/623/med/1c176954919940623_SJ.jpg)
![Продава 3-стаен град Варна , Виница , 95 кв.м | 17153706 - изображение [3] — Imoti.com Продава 3-стаен град Варна , Виница , 95 кв.м | 17153706 - изображение [3]](http://imotstatic4.focus.bg/imot/photosimotbg/1/623/med/1c176954919940623_lZ.jpg)
![Продава 3-стаен град Варна , Виница , 95 кв.м | 17153706 - изображение [4] — Imoti.com Продава 3-стаен град Варна , Виница , 95 кв.м | 17153706 - изображение [4]](http://imotstatic4.focus.bg/imot/photosimotbg/1/623/med/1c176954919940623_EK.jpg)
![Продава 3-стаен град Варна , Виница , 95 кв.м | 17153706 - изображение [5] — Imoti.com Продава 3-стаен град Варна , Виница , 95 кв.м | 17153706 - изображение [5]](http://imotstatic4.focus.bg/imot/photosimotbg/1/623/med/1c176954919940623_7G.jpg)
![Продава 3-стаен град Варна , Виница , 95 кв.м | 17153706 - изображение [6] — Imoti.com Продава 3-стаен град Варна , Виница , 95 кв.м | 17153706 - изображение [6]](http://imotstatic4.focus.bg/imot/photosimotbg/1/623/med/1c176954919940623_pJ.jpg)
![Продава 3-стаен град Варна , Виница , 95 кв.м | 17153706 - изображение [7] — Imoti.com Продава 3-стаен град Варна , Виница , 95 кв.м | 17153706 - изображение [7]](http://imotstatic4.focus.bg/imot/photosimotbg/1/623/med/1c176954919940623_75.jpg)
![Продава 3-стаен град Варна , Виница , 95 кв.м | 17153706 - изображение [8] — Imoti.com Продава 3-стаен град Варна , Виница , 95 кв.м | 17153706 - изображение [8]](http://imotstatic4.focus.bg/imot/photosimotbg/1/623/med/1c176954919940623_fK.jpg)
![Продава 3-стаен град Варна , Виница , 95 кв.м | 17153706 - изображение [9] — Imoti.com Продава 3-стаен град Варна , Виница , 95 кв.м | 17153706 - изображение [9]](http://imotstatic4.focus.bg/imot/photosimotbg/1/623/med/1c176954919940623_rk.jpg)
![Продава 3-стаен град Варна , Виница , 95 кв.м | 17153706 - изображение [10] — Imoti.com Продава 3-стаен град Варна , Виница , 95 кв.м | 17153706 - изображение [10]](http://imotstatic4.focus.bg/imot/photosimotbg/1/623/med/1c176954919940623_mN.jpg)
![Продава 3-стаен град Варна , Виница , 95 кв.м | 17153706 - изображение [11] — Imoti.com Продава 3-стаен град Варна , Виница , 95 кв.м | 17153706 - изображение [11]](http://imotstatic4.focus.bg/imot/photosimotbg/1/623/med/1c176954919940623_P6.jpg)
![Продава 3-стаен град Варна , Виница , 95 кв.м | 17153706 - изображение [12] — Imoti.com Продава 3-стаен град Варна , Виница , 95 кв.м | 17153706 - изображение [12]](http://imotstatic4.focus.bg/imot/photosimotbg/1/623/med/1c176954919940623_A4.jpg)
![Продава 3-стаен град Варна , Виница , 95 кв.м | 17153706 - изображение [13] — Imoti.com Продава 3-стаен град Варна , Виница , 95 кв.м | 17153706 - изображение [13]](http://imotstatic4.focus.bg/imot/photosimotbg/1/623/med/1c176954919940623_uV.jpg)
![Продава 3-стаен град Варна , Виница , 95 кв.м | 17153706 - изображение [14] — Imoti.com Продава 3-стаен град Варна , Виница , 95 кв.м | 17153706 - изображение [14]](http://imotstatic4.focus.bg/imot/photosimotbg/1/623/med/1c176954919940623_PL.jpg)
![Продава 3-стаен град Варна , Виница , 95 кв.м | 17153706 - изображение [15] — Imoti.com Продава 3-стаен град Варна , Виница , 95 кв.м | 17153706 - изображение [15]](http://imotstatic4.focus.bg/imot/photosimotbg/1/623/med/1c176954919940623_V8.jpg)
![Продава 3-стаен град Варна , Виница , 95 кв.м | 17153706 - изображение [16] — Imoti.com Продава 3-стаен град Варна , Виница , 95 кв.м | 17153706 - изображение [16]](http://imotstatic4.focus.bg/imot/photosimotbg/1/623/med/1c176954919940623_Rj.jpg)
![Продава 3-стаен град Варна , Виница , 95 кв.м | 17153706 - изображение [17] — Imoti.com Продава 3-стаен град Варна , Виница , 95 кв.м | 17153706 - изображение [17]](http://imotstatic4.focus.bg/imot/photosimotbg/1/623/med/1c176954919940623_oc.jpg)


